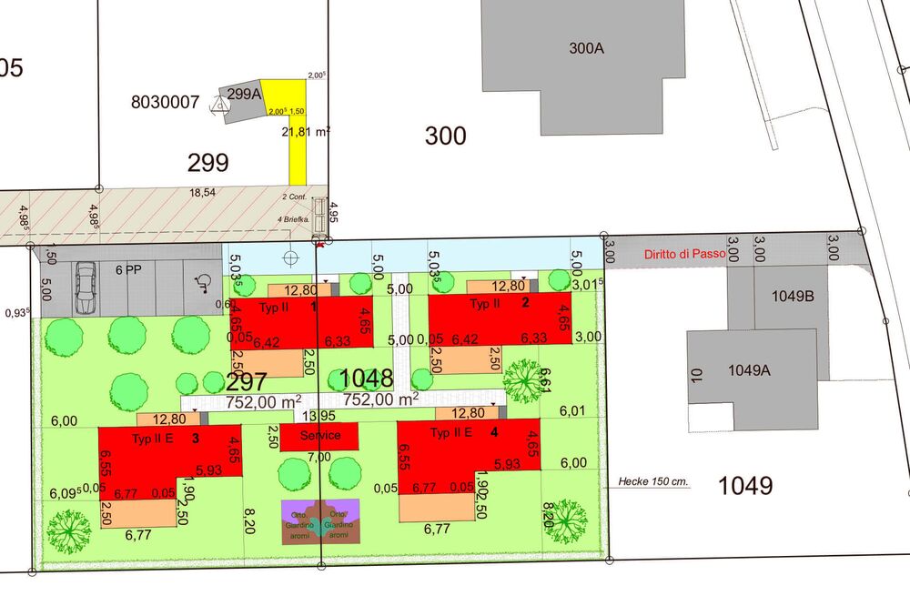
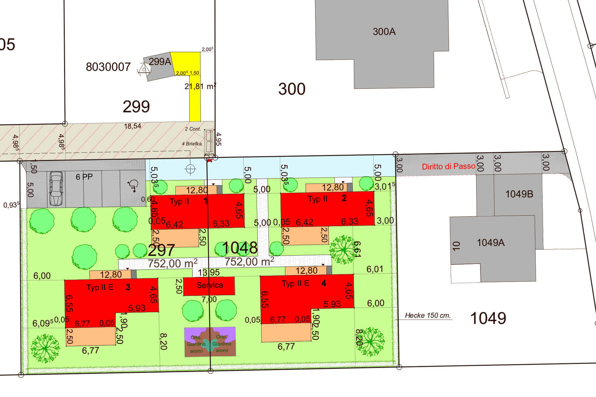
Unser Projekt
Bignasco
4 Tiny Häuser
Zurück
Vorheriges Projekt
Projekt Schinznach Halde
Nächstes Projekt
Projekt Zeiningen