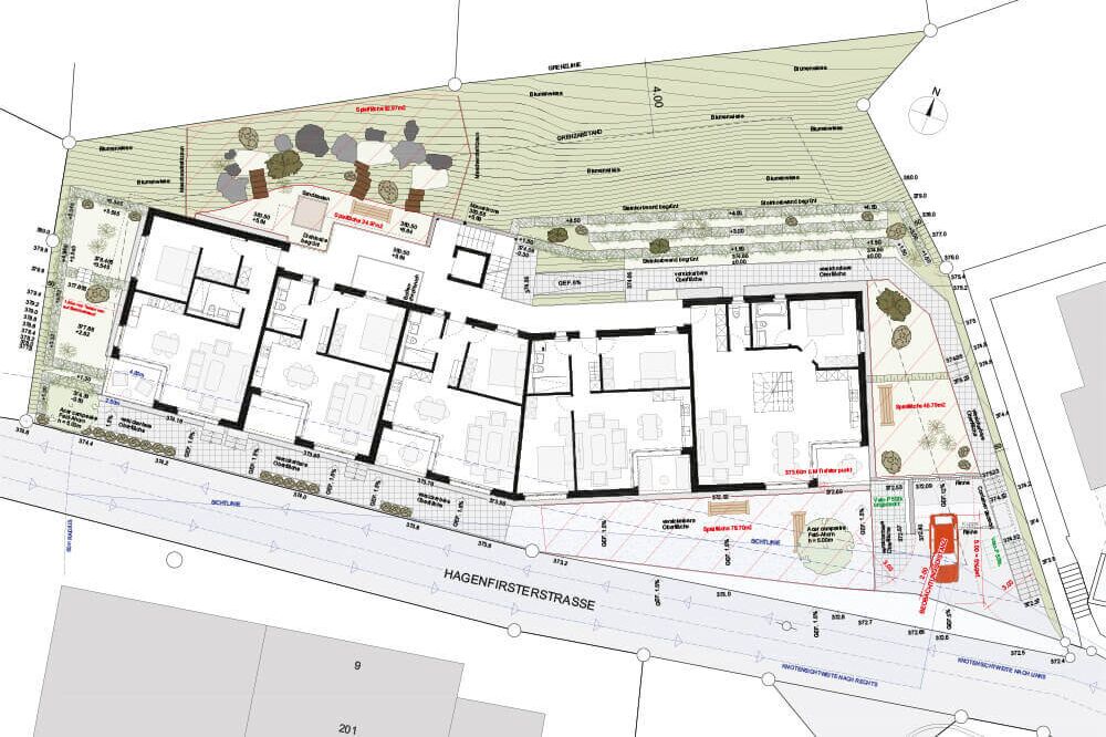
Unser Projekt
Hettenschwil Leuggern
17 Wohnungen
Zurück
Vorheriges Projekt
Projekt Veltheim